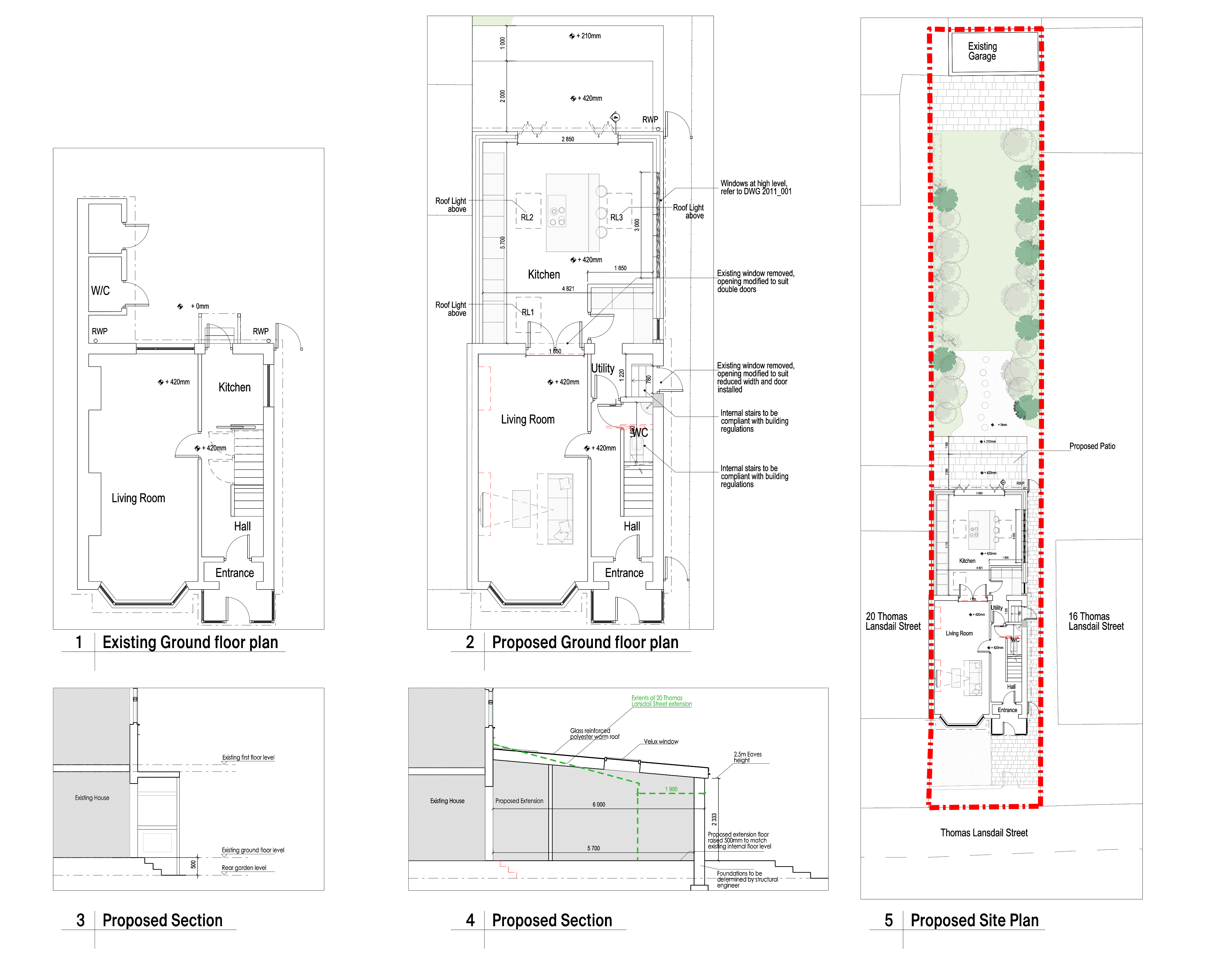
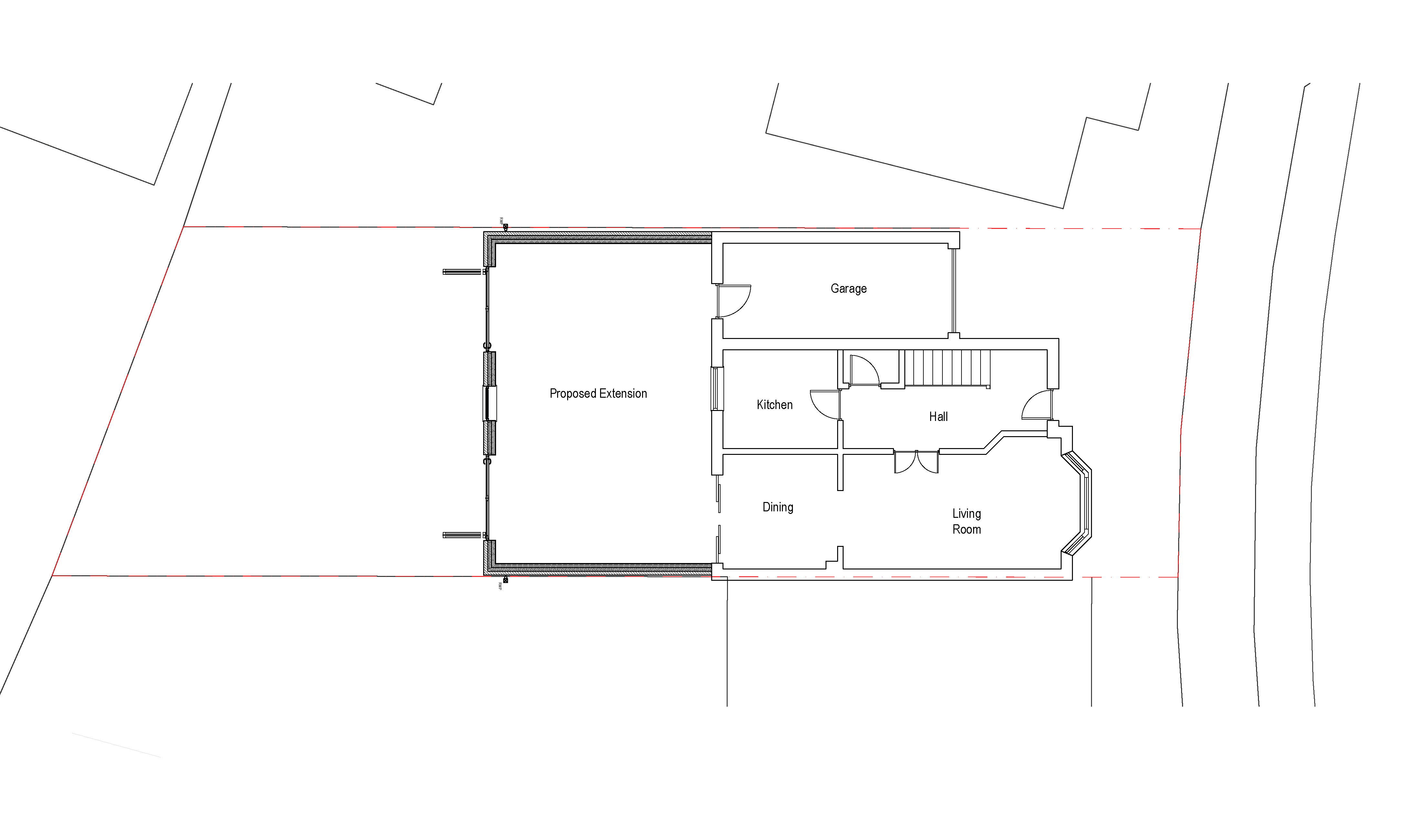
Home Home extensions, Loft conversions , Kitchen extensions and all Residential Architectural design. Contact resi.architecture@gmail.com Single Storey Rear Extension 4 Bedroom Bungalow with 2 Bedroom Annex, Gatehouse and Garage Two Storey Rear Extension Single Storey Rear Extension Single Storey Rear extension and loft conversion Contact resi.architecture@gmail.com